Key Features
- Ground Floor
- Modern Finish
- Seaside Living
- Beautiful Communal Space
- Off Road Parking
- Desirable New Brighton Location
- EPC D
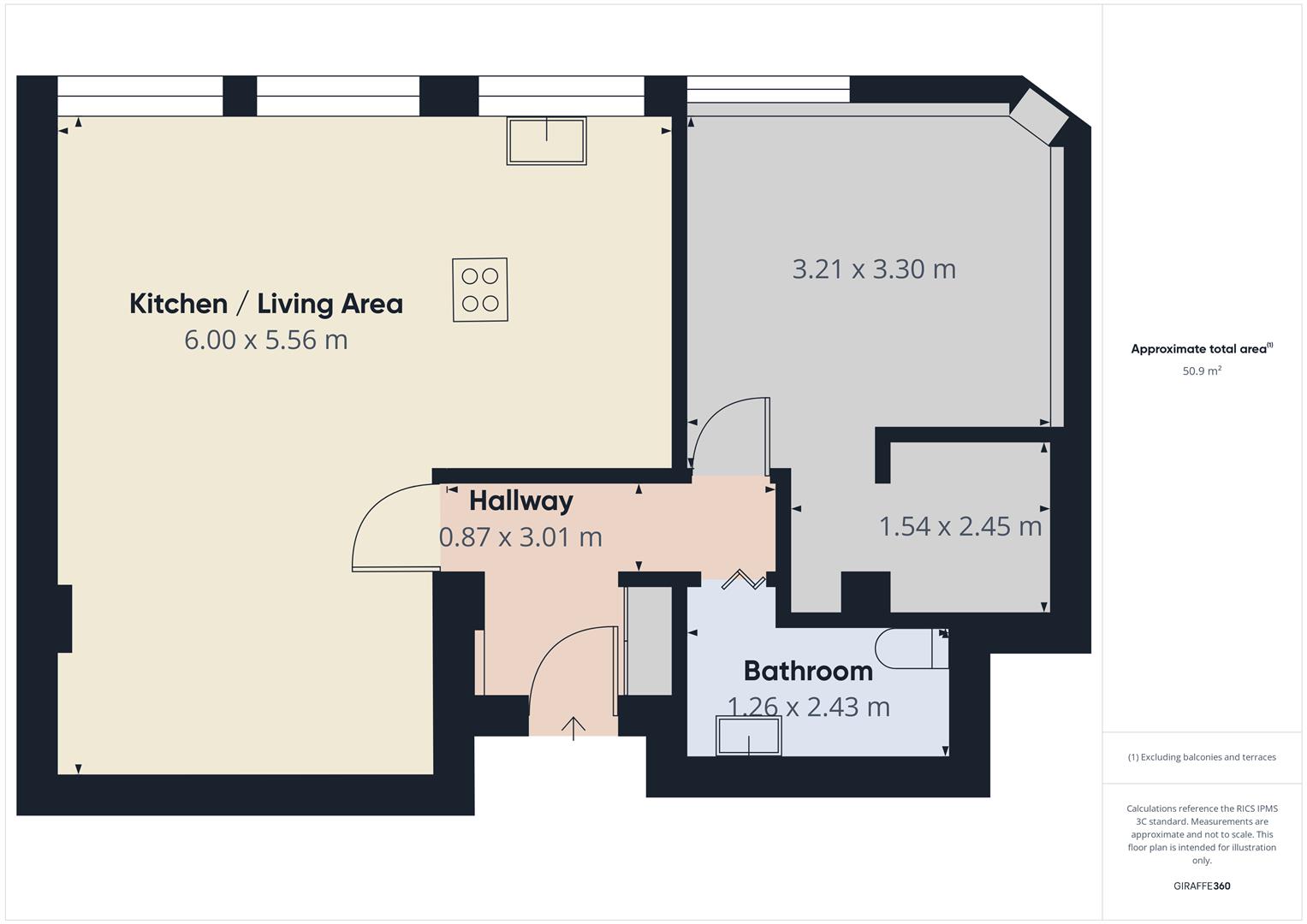
Nestled in the charming seaside area of New Brighton on the Wirral, this delightful post-1914 apartment at 7 Portland Court offers a perfect blend of comfort and convenience. With one spacious reception room, this property provides an inviting space for relaxation and entertaining. The apartment features one well-appointed bedroom, ideal for a peaceful night's rest, along with two modern bathrooms that ensure ample facilities for residents and guests alike.
The location is a true highlight, as New Brighton boasts a vibrant community and stunning coastal views. Residents can enjoy leisurely strolls along the promenade, with the beach just a stone's throw away, making it an ideal spot for those who appreciate the beauty of seaside living.
Additionally, the property benefits from off-road parking, a valuable feature in this popular area, providing ease and security for your vehicle. This apartment is perfect for individuals or couples seeking a tranquil retreat by the sea, while still being close to local amenities and transport links.
In summary, this apartment at 7 Portland Court is a wonderful opportunity to embrace a coastal lifestyle in a well-connected and picturesque location.
EPC rated D
The location is a true highlight, as New Brighton boasts a vibrant community and stunning coastal views. Residents can enjoy leisurely strolls along the promenade, with the beach just a stone's throw away, making it an ideal spot for those who appreciate the beauty of seaside living.
Additionally, the property benefits from off-road parking, a valuable feature in this popular area, providing ease and security for your vehicle. This apartment is perfect for individuals or couples seeking a tranquil retreat by the sea, while still being close to local amenities and transport links.
In summary, this apartment at 7 Portland Court is a wonderful opportunity to embrace a coastal lifestyle in a well-connected and picturesque location.
EPC rated D
Virtual Tour
Energy Performance Certificate (EPC) graphs
The Energy Performance Certificate (EPC) gives the building a standard energy and carbon emission efficiency grade from 'A' to 'G', where 'A' is the most efficient and 'D' being the average to date.