Call Us 0151 638 6313
£130,000
Victoria Road, Wallasey, 0 bedroom, Commercial

Book a Viewing

Please fill in the form below and an agent will contact you assist you in arranging a viewing this property

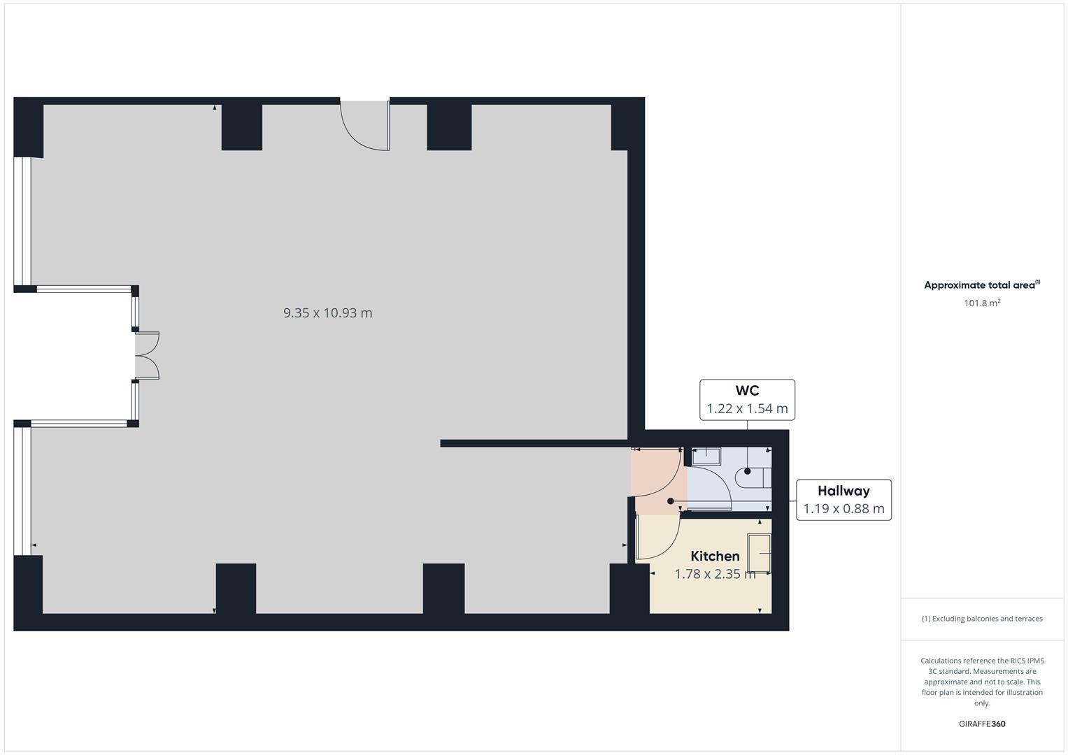
Key Features

  • Set In The Victorian Quarter
  • Large Commercial Unit
  • WC
  • Kitchen Area
  • High Foot Flow Area
  • Viewing Essential
  • EPC Rating TBC
Nestled in the charming Victorian quarter of New Brighton, this commercial property presents a unique opportunity for commercial interests. Spanning an impressive 549 square feet, the property boasts a versatile layout that includes a commercial shop unit, making it an ideal investment for those seeking a rental income.

The location on Victoria Road places you just a stone's throw from the picturesque promenade, allowing for leisurely strolls along the waterfront and easy access to local amenities. The shop floor area is well-suited for a variety of business ventures, while the inclusion of a WC and kitchen area adds to the convenience of the space.

Do not miss the chance to explore the possibilities that this commercial unit has to offer in the vibrant community of New Brighton.


Virtual Tour

Energy Performance Certificate (EPC) graphs

The Energy Performance Certificate (EPC) gives the building a standard energy and carbon emission efficiency grade from 'A' to 'G', where 'A' is the most efficient and 'D' being the average to date.

Energy Efficiency Rating

Current
D67
Potential
A0

Environmental(CO2) Impact Rating

Current
A0
Potential
A0

Ready To Sell?

Call today or email us with your details, we have viewers waiting to see property like yours, today!

We use cookies to improve the browsing experience for you and others. If you would like to learn more about cookies please view our cookie policy. To accept cookies continue browsing as normal. Continue